Via Ludovico Lazzaro Zamenhof, 20136 Milano MI, Italia
Via Ludovico Lazzaro Zamenhof, 20136 Milano MI, ItaliaInformazioni di base
- Prezzo al mq: 6.360€
- Categoria: In Vendita
- Tipo: RISTRUTTURATO, TRILOCALE
- Stato: ottime condizioni
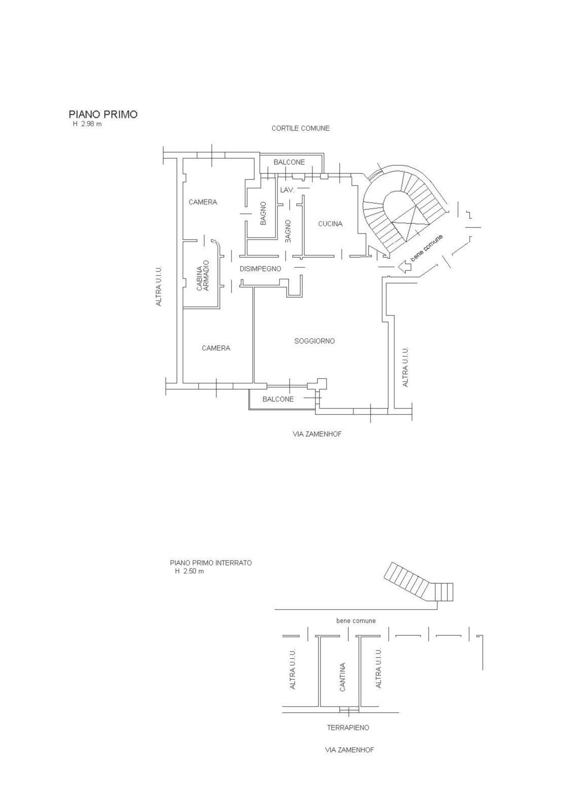
- Camere da letto: 2
- Bagni: 2
- Locali: 3
- Piani edificio: 5
- Piano: 1
- Area, m²: 125 m²
- Anno di costruzione: 1960
- Classe energetica: E
- Ascensore: SI
- Esposizione: DOPPIA
- Balcone: SI
- Riscaldamento: CENTRALIZZATO
- Spese condominiali: 250.00 € /MESE
- Box/Posto Auto: POSSIBILITA' DI ACQUISTO BOX
- Cantina/Solaio: CANTINA
Descrizione
-
Descrizione:
Nel cuore pulsante di Milano, a pochi passi dalla Darsena e dai romantici Navigli, proponiamo in vendita un ampio e raffinato trilocale situato in Corso San Gottardo, una delle zone più autentiche e vive della città. Qui la tradizione milanese incontra la contemporaneità: un quartiere dove le case di ringhiera, le botteghe storiche e i cortili fioriti si alternano a locali di tendenza, gallerie d’arte e nuovi spazi culturali. Un’area in continua trasformazione, amata tanto da chi desidera vivere il fascino della Milano storica quanto da chi cerca la vitalità e la comodità di una zona centrale perfettamente servita. Lo stabile, signorile e ben tenuto, è dotato di servizio di portineria mezza giornata e si trova in una via strategica che consente di raggiungere in pochi minuti a piedi sia la zona dei Navigli sia Porta Ticinese, cuore del divertimento e della movida milanese. La fermata della metropolitana M4 Santa Sofia e la M2 Porta Genova, insieme alle numerose linee di tram e autobus che attraversano la zona, garantiscono collegamenti rapidi verso ogni punto della città, incluse le università Bocconi, NABA e IULM. La presenza di negozi di vicinato, supermercati, scuole e spazi verdi rende inoltre questa posizione ideale anche per famiglie e professionisti che desiderano una vita di quartiere autentica ma con tutti i comfort moderni. L’appartamento si trova al primo piano e si distingue per la cura dei dettagli e per l’elevata qualità della ristrutturazione recente, realizzata con materiali e finiture di pregio. Gli ambienti, ampi e luminosi grazie alla doppia esposizione e alle numerose finestre, sono stati progettati per garantire una distribuzione razionale e un comfort abitativo di alto livello. L’ingresso introduce in un grande soggiorno con balcone, uno spazio accogliente e versatile, perfetto per momenti di convivialità o relax. Grazie alla metratura e alla disposizione degli spazi, è possibile ricavare una terza camera da letto o uno studio senza rinunciare all’armonia dell’ambiente. La cucina abitabile, separata e luminosa, affaccia su un secondo balcone e dispone di un pratico locale lavanderia, pensato per ottimizzare al meglio la quotidianità domestica. La zona notte si compone di due ampie camere da letto, entrambe arredate con gusto e personalità. La camera padronale, dotata di una splendida cabina armadio su misura, dispone di un bagno en suite finestrato, realizzato con eleganti materiali contemporanei e dotato di doccia. Il secondo bagno, anch’esso con doccia, è collocato in posizione centrale e impreziosito da dettagli di design. Un ampio corridoio con armadiature su misura completa la disposizione interna, offrendo funzionalità e ordine senza sacrificare l’estetica. L’intervento di ristrutturazione ha interessato ogni parte dell’abitazione, con particolare attenzione alle finiture sartoriali: pavimenti in legno naturale, infissi ad alte prestazioni, porte scorrevoli, illuminazione integrata, aria condizionata canalizzata anche in cucina e cucina realizzata artigianalmente da falegname, così come le armadiature e la cabina armadio. Ogni dettaglio è stato pensato per creare un ambiente armonioso, contemporaneo e confortevole. Completa la proprietà una cantina di pertinenza al piano seminterrato, ideale come spazio di deposito, e vi è la possibilità di acquistare un box auto nelle immediate vicinanze, un valore aggiunto raro in questa zona del centro. L’immobile rappresenta una soluzione ideale per chi cerca una residenza di charme nel cuore di Milano, perfetta per famiglie, coppie o professionisti che desiderano un’abitazione pronta da vivere, dove il gusto per i materiali e la funzionalità degli spazi si fondono in un equilibrio elegante e moderno. La posizione strategica, unita alla qualità degli interni e al contesto vivace, rende questa proposta un investimento di valore, con prospettive di rivalutazione interessanti nel tempo. Vivendo in Corso San Gottardo si sceglie un quartiere autentico e dinamico, dove ogni giornata scorre tra mercatini, botteghe, profumi di cucina milanese e serate lungo i Navigli: un piccolo mondo nel cuore della metropoli, dove il fascino del passato si intreccia con la creatività del presente.
PER MAGGIORI INFORMAZIONI CONTATTARE
Mostra tutta la descrizione
Poliedro Immobiliare
TEL. 02.89415568 – CELL. 392.8506419 – EMAIL poliedroimmobiliare@yahoo.it